Get Social With Us
insula | VIA AURELIA
20031
single,single-portfolio_page,postid-20031,ajax_updown,page_not_loaded,,vertical_menu_enabled,select-child-theme-ver-1.0.0,select-theme-ver-2.8.1,wpb-js-composer js-comp-ver-4.7.4,vc_responsive

VIA AURELIA

Complesso residenziale nel quartiere Aurelio

Roma

2016-2017

 

Cliente: Fabrica Immobiliare

Oggetto: Prog. preliminare e definitivo

dimensioni: SUL 2800 mq

in corso

 

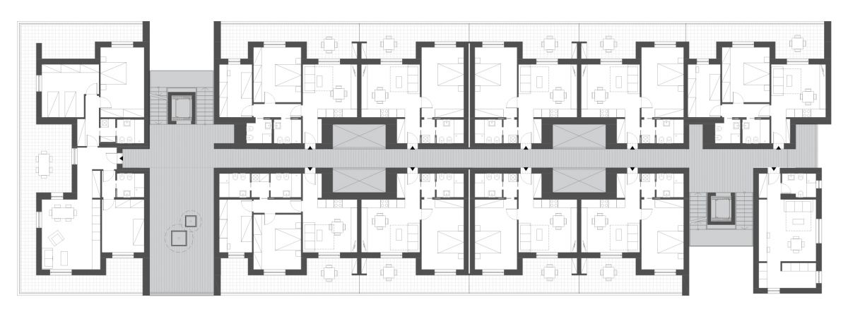
L’intervento riguarda la realizzazione di un edificio residenziale nel quartiere Aurelio, alle spalle del Vaticano. In posizione panoramica, immerso nel verde, l’edificio insiste su un lotto in pendenza e si sviluppa su 5 piani di altezza, oltre ad un garage seminterrato; il piano di copertura ospita una grande terrazza-solarium condominiale.

Il corpo di fabbrica doppio,  è servito da un ballatoio centrale aperto che corre lungo l’asse longitudinale; due corpi scala con ascensore assicurano la distribuzione verticale per 53 alloggi complessivi. La notevole lunghezza del complesso edilizio ha suggerito di articolare il volume in più parti al di sopra di un basamento unitario: le testate del blocco edilizio ruotano verso l’esterno, mentre i tagli dei corpi scala sezionano il volume del fabbricato.

Le balconate continue delle facciate, rese unitarie dal disegno dei brise soleil e dei parapetti, dialogano con le profonde incisioni dei ballatoi e delle scale.

 

Category

MEDIO