Get Social With Us
insula | Ex convento di San Francesco a Ripa
22336
single,single-portfolio_page,postid-22336,ajax_updown,page_not_loaded,,vertical_menu_enabled,select-child-theme-ver-1.0.0,select-theme-ver-2.8.1,wpb-js-composer js-comp-ver-4.7.4,vc_responsive

Ex convento di San Francesco a Ripa

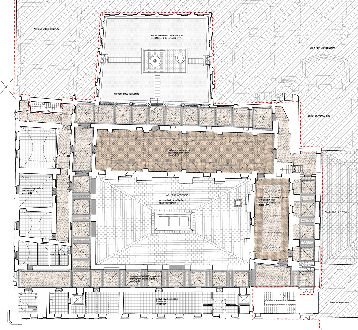
Completamento dei lavori di restauro, cambio di destinazione d’uso e recupero funzionale dell’ex Convento di San Francesco a Ripa a Porta Portese

Roma

2021-2022

 

progettisti: Insula, Climater srl, Michele Zampilli, Debora Fagiani

committente: MiBAC

oggetto: progetto definitivo e esecutivo, coordinamento della sicurezza

consistenza: 2000 mq

 

in corso

 

Gli spazi destinati ad ospitare gli ambienti di rappresentanza ad uso del MIBACT si sviluppano su tre livelli intorno al Cortile del Lavatoio, uno dei tre grandi cortili che organizzano l’importante complesso trasteverino dell’ex convento di San Francesco a Ripa. Gli interventi da affrontare in questa fase riguardano il piano terra, destinato ad accogliere i principali ambienti aperti al pubblico, l’archivio e la biblioteca, oltre ad alcune funzioni di amministrazione e di logistica. Il progetto interessa anche le aree esterne di pertinenza. Nel pieno rispetto del palinsesto architettonico storico, il progetto prevede da un lato la migliore organizzazione degli spazi dell’edificio, al fine di garantire la piena funzionalità, dall’altro l’integrazione con quanto già realizzato negli interventi precedenti al primo e al secondo piano.

 

 

Category

MEDIO