Realizzazione di un polo abitativo di 248 alloggi nella Caserma Zignani
Roma – via Etruria
2021
progettisti: Insula (capogruppo) con Engeko scarl
committente: Ministero della Difesa e Direzione Nazionale degli Armamenti
oggetto: gara di affidamento di incarico – proposta migliorativa
consistenza: 248 alloggi
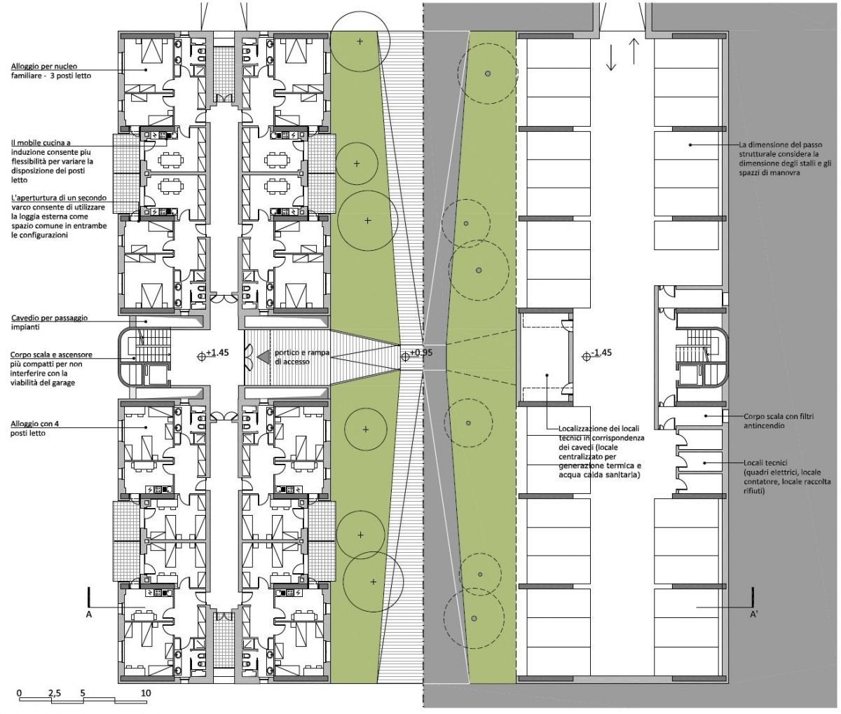
In sostituzione di alcuni fabbricati fatiscenti all’interno dell’area di pertinenza della storica Caserma Zignani, il Ministero della Difesa intende realizzare un consistente polo abitativo per il personale di passaggio (APP): 248 piccoli alloggi che potranno essere allestiti come alloggi condivisi o per piccoli nuclei famigliari. Rispetto al progetto preliminare a base di gara, la proposta migliorativa si pone come obiettivo: migliorare l’impianto generale del complesso edilizio minimizzando la viabilità carrabile rispetto alle aree pedonali; ottimizzare il piano garage; migliorare le sistemazioni esterne aumentando le superfici a verde e migliorando e percorsi di accesso; migliorare la qualità estetica e la riconoscibilità degli edifici attraverso l’utilizzo di differenti finiture e trattamenti id facciata; ottimizzare il sistema strutturale dei fabbricati; migliorare la dotazione tecnologica, l’efficienza energetica degli involucri, e il confort degli alloggi.
.MOLTO GRANDE