Get Social With Us
insula | VIA FLAVIA
20035
single,single-portfolio_page,postid-20035,ajax_updown,page_not_loaded,,vertical_menu_enabled,select-child-theme-ver-1.0.0,select-theme-ver-2.8.1,wpb-js-composer js-comp-ver-4.7.4,vc_responsive

VIA FLAVIA

Riconversione abitativa di un edificio moderno per uffici nel centro storico

Roma

2016-2017

 

cliente: Fabrica Immobiliare SGR spa

oggetto: prog. definitivo, esecutivo e direzione lavori

dimensioni: mq 2.400

Foto: ©Paolo Fusco

Realizzato

 

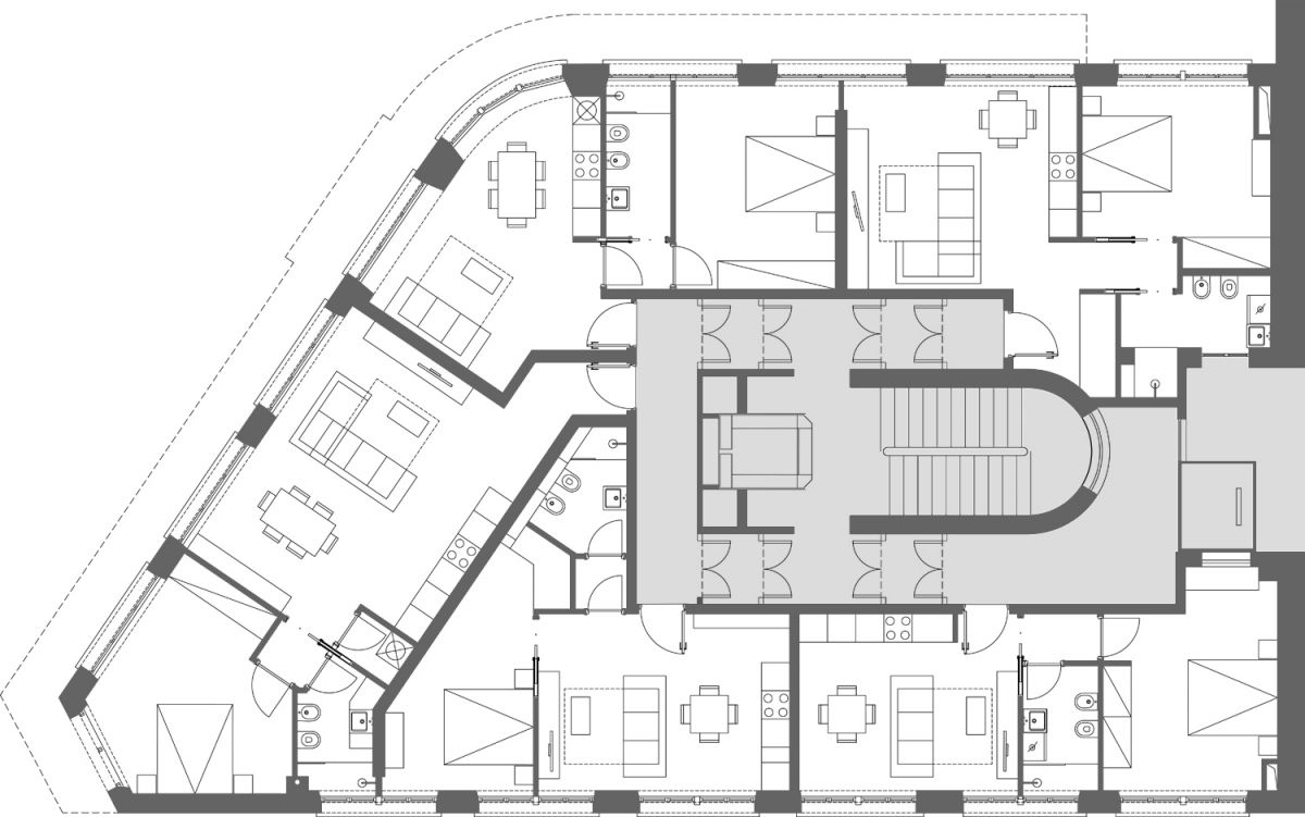
L’intervento riguarda il recupero e la trasformazione di un edificio posto all’angolo fra via Piave e via Flavia, nel Rione Sallustiano, in Roma. L’edificio nasce nel 1949 su disegno dell’architetto Angelo di Castro, come casa di abitazione, successivamente trasformato in uffici dell’ENPAS. Si tratta di un fabbricato di nove livelli fuori terra, con una pianta articolata, che risolve la testata su via Piave e borda uno slargo aperto su via XX Settembre.

Il progetto ha previsto la completa riorganizzazione dello spazio utile, con la realizzazione di abitazioni di taglio piccolo e medio, compresi fra i 45 e gli 85 mq. La nuova sistemazione ha richiesto il rifacimento completo dell’impiantistica e di tutte le finiture interne. Si è intervenuto anche sulle facciate con la sostituzione degli infissi, in modo da recuperare l’immagine originaria del fabbricato caratterizzato da finestre a nastro.

Category

MEDIO