Get Social With Us
insula | Scuola Futura Ardea
22591
single,single-portfolio_page,postid-22591,ajax_updown,page_not_loaded,,vertical_menu_enabled,select-child-theme-ver-1.0.0,select-theme-ver-2.8.1,wpb-js-composer js-comp-ver-4.7.4,vc_responsive

Scuola Futura Ardea

Concorso di idee per la nuova scuola primaria di primo grado ad Ardea

Ardea, Roma

2022 – 2023

 

progettisti: Insula (capogruppo) con Sequas ingegneria srl (impianti)

committente: Ministero dell’istruzione, Comune di Ardea

oggetto: concorso di idee in due fasi, PFTE

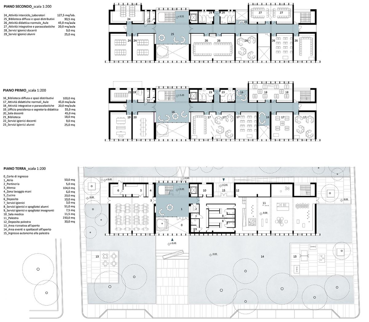
consistenza: mq 1.674, 10 aule

Primo premio

 

Nell’ambito dell’iniziativa SCUOLA FUTURA promossa dal Ministero dell’Istruzione e finanziata con i fondi del PNRR, Insula si è aggiudicata il primo premio per il progetto della nuova scuola di Ardea, a seguito del quale ha sviluppato il progetto di fattibilità tecnica ed economica.

Il nuovo edificio si sviluppa su tre livelli all’interno di una volumetria compatta e razionale che denuncia in facciata la sua natura lignea grazie ad un ritmo serrato di membrature verticali. Il fronte principale è arretrato rispetto alla strada per fare posto ad un giardino dove affacciano tutti gli ambienti scolastici. Un’ampia corte di ingresso interrompe la sequenza di facciata, organizzando lo spazio dell’atrio con una sorta di piazza protetta. Il prospetto posteriore dell’edificio contiene tutti i servizi, ordinati entro una fascia di spessore costante. Il corridoio di distribuzione, parallelo alla parete dei servizi, serve gli ambienti ai diversi piani, in una sequenza di spazi luminosi e articolati. Il risparmio energetico e la sostenibilità ambientale sono i principali criteri nella progettazione della nuova scuola. Sfruttando la disponibilità di un lotto ampio e verde, l’edificio si propone come una struttura aperta, accogliente, fruibile, sicura, rivolta agli utenti e all’intera comunità.

Category

MEDIO