Get Social With Us
insula | VIA QUATTRO FONTANE
19884
single,single-portfolio_page,postid-19884,ajax_updown,page_not_loaded,,vertical_menu_enabled,select-child-theme-ver-1.0.0,select-theme-ver-2.8.1,wpb-js-composer js-comp-ver-4.7.4,vc_responsive

VIA QUATTRO FONTANE

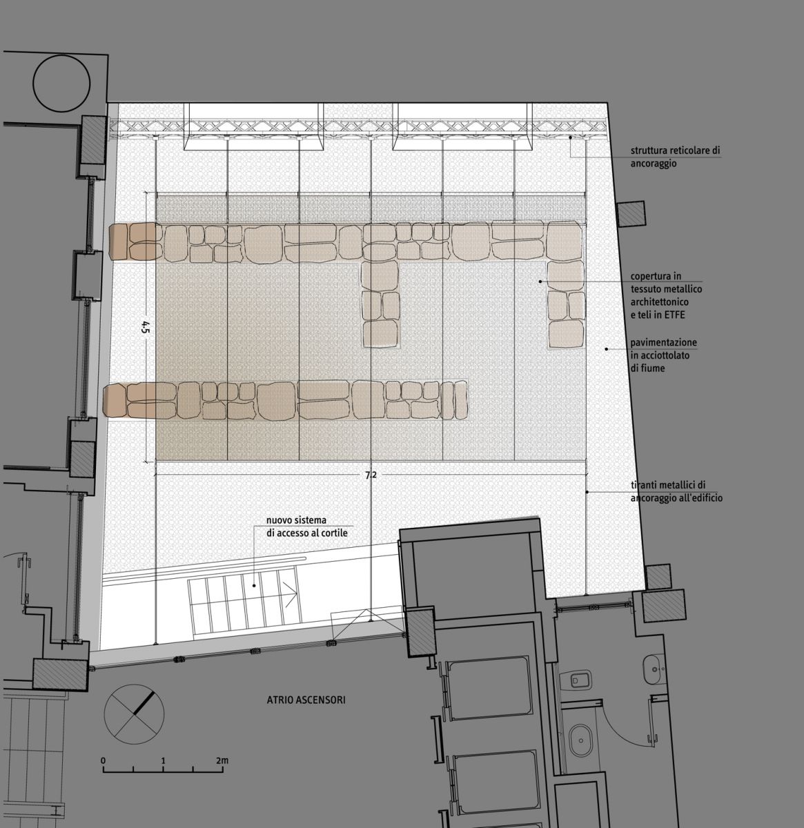
Valorizzazione dei ruderi conservati nel cortile laterale dell’edificio della Banca d’Italia

Roma

2016-2017

 

Cliente:  Italiana Costruzioni spa per Banca d’Italia – Eurosistema

Oggetto: prog. preliminare ed esecutivo

 

Il progetto prevede la protezione dagli agenti atmosferici dei ruderi con la parziale copertura della chiostrina, attraverso la realizzazione di un fondale orientato verso la visuale privilegiata del fruitore, quella delle vetrate verso lo sbarco ascensori. Si è pensato quindi ad un oggetto astratto, monomaterico, traslucido, da illuminare  opportunamente con proiettori posizionati in punti opportuni sul fronte opposto alla quinta. L’effetto voluto è di assoluta astrazione: un telo semitrasparente, una quinta, un fondale fluttuante di cui non si percepisce lo spessore e la matericità, realizzata mediante un tendaggio in tessuto metallico architettonico sostenuto da una leggera struttura metallica ancorata alle strutture dell’edificio. La copertura verrà impermeabilizzata mediante teli in ETFE.

Category

PICCOLO