Get Social With Us
insula | Scandriglia
20150
single,single-portfolio_page,postid-20150,ajax_updown,page_not_loaded,,vertical_menu_enabled,select-child-theme-ver-1.0.0,select-theme-ver-2.8.1,wpb-js-composer js-comp-ver-4.7.4,vc_responsive

Scandriglia

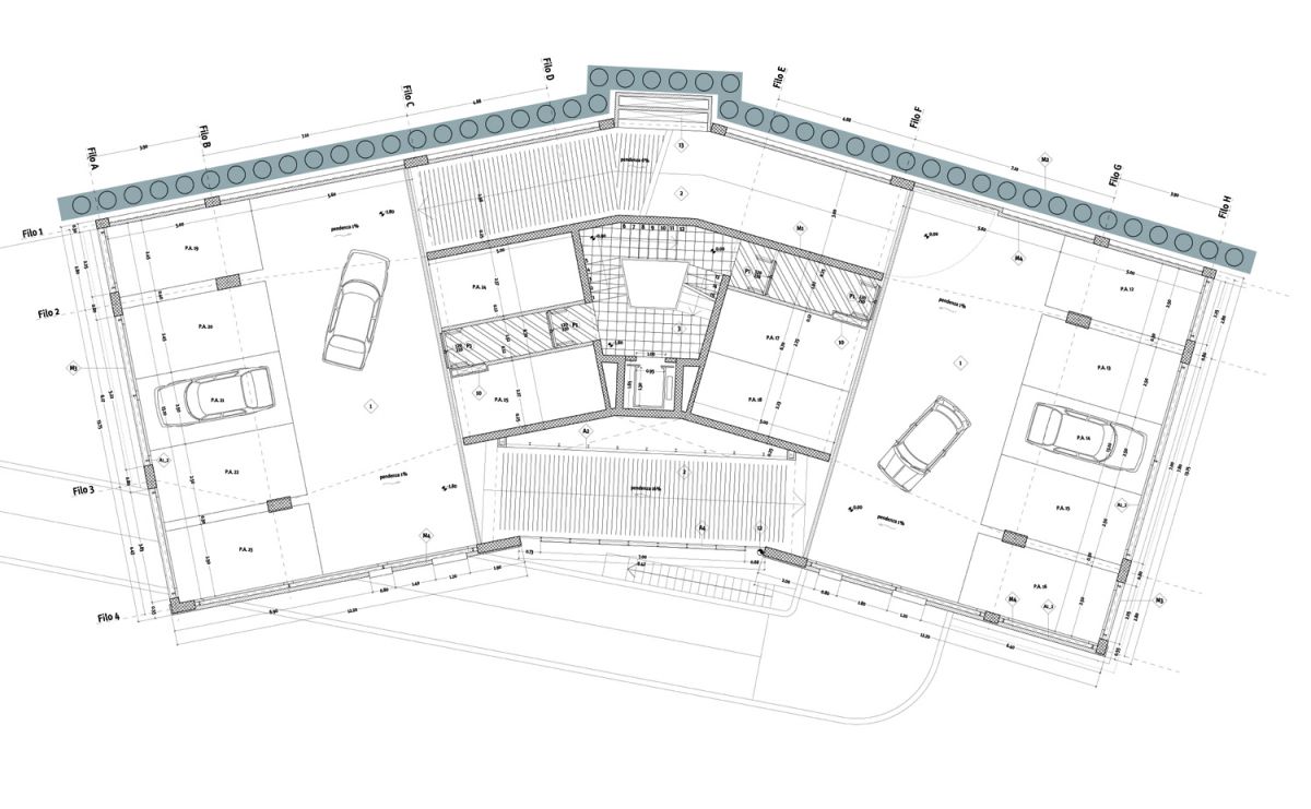
Parcheggio multipiano nel centro storico

Scandriglia-Rieti

2008/2011

 

Cliente: Comune di Scandriglia

Oggetto: prog. preliminare (con F. Cellini – capogruppo), prog. definitivo, esecutivo, direzione dei lavori e coordinamento della sicurezza

Dimensioni: mq 1.240; 57 p.a.

in corso

 

Obiettivo primario dell’intervento quello di realizzare un’opera attenta e misurata, che sappia contemperare le esigenze infrastrutturali di opere necessarie a garantire le condizioni di accessibilità al paese con le ragioni del paesaggio dei Monti Lucretili. Il progetto pone una grande attenzione alla volumetria dell’opera da realizzare, con la consapevolezza della estrema delicatezza dell’intervento. La scelta è stata quella di realizzare una sorta di bastione non emergente rispetto alle quote stradali, contenuto quanto possibile planimetricamente, che si inserisca nel contesto del prospetto di Scandriglia, fatto dei volumi delle case affacciate sulla valle. L’edificio è articolato in due corpi di fabbrica posti su piani sfalsati. Tale sfalsamento altimetrico consente il miglior raccordo fra le quote dell’edificio autorimessa e quelle della piazza e della strada esistenti. Il piano di copertura dell’autorimessa è complanare con la piazza Garibaldi e ne costituisce un ampliamento verso valle.

Category

MEDIO