Get Social With Us
insula | Atrio di Prelios
20696
single,single-portfolio_page,postid-20696,ajax_updown,page_not_loaded,,vertical_menu_enabled,select-child-theme-ver-1.0.0,select-theme-ver-2.8.1,wpb-js-composer js-comp-ver-4.7.4,vc_responsive

Atrio di Prelios

Progetto di riqualificazione dell’atrio di ingresso di un edificio per uffici in via C.Colombo

Roma

2014

 

Cliente: Prelios Integra

Oggetto: progetto preliminare

concorso ad inviti

 

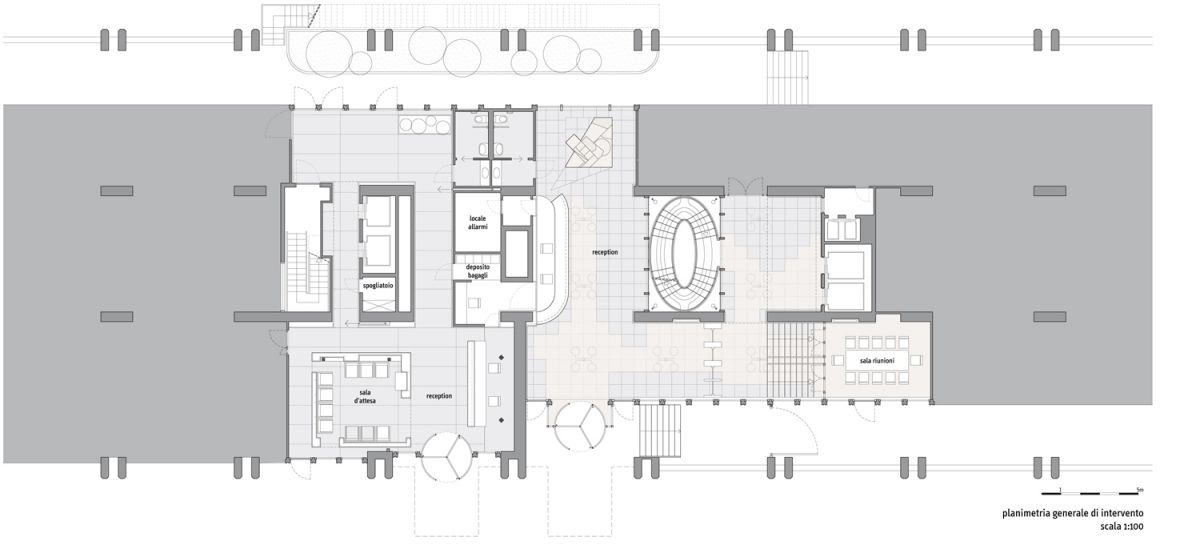
Il progetto interviene sull’atrio di ingresso del Palazzo del Credito Fondiario del 1960 che serve due parti distinte dell’edificio : a destra un ambiente passante a doppia altezza, caratterizzato da una scala elicoidale, e a sinistra la sede della Pricewaterhouse Coopers (PWC) a cui si accede tramite una bussola a doppia porta che immette in un ambiente per la portineria, il bancone e la sala d’attesa, dove il progetto prevede la realizzazione di un nuovo bancone e la sostituzione delle pavimentazioni, i controsoffitti e i rivestimenti delle pareti.

Nell’atrio di destra si propone, in analogia con quello adiacente, la sostituzione della bussola di accesso con una porta girevole e si inserisce un nuovo plafond sospeso di grande dimensione in corrispondenza del bancone. Inoltre l’illuminazione della scala è potenziata, enfatizzando l’effetto lanterna all’interno dell’atrio.

Category

PICCOLO